Haus - 01.12.2023 |

'1
Aussen



'Aussen 0a
Vogelperspektive



'Aussen 0a
Vogelperspektive



'2
Aussen



'3
Aussen



'4
Aussen



'5
Aussen



'6
Aussen



'7
EG Flur



'8
EG Flur



'9
EG Flur



'10
EG Bad



'11
EG Bad



'12
EG Küche



'13
EG Küche



'14
EG Wohnzimmer



'15
EG Wohnzimmer



'16
EG Terasse



'17
EG Treppe



'18
EG Treppe



'19
OG Flur



'20
OG Bad



'21
OG Bad



'22
OG Bad



'23
OG Schlafzimmer



'24
OG Schlafzimmer



'25
OG Schlafzimmer



'26
OG Schlafzimmer



'27
OG Kinderzimmer



'28
OG Kinderzimmer



'29
OG Kinderzimmer



'30
OG Kinderzimmer



'31
OG Kinderzimmer 5



'32
OG Zimmer



'33
OG Zimmer



'34
OG Zimmer



'35
Dachgeschoss



'36
Dachgeschoss



'37
Dachgeschoss



'38
Dachgeschoss



'39
Keller



'40
Waschküche



'41
Grundriss EG



'41
Your browser does not support the video tag.
Grundriss EG



'42
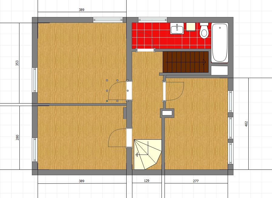
Grundriss OG



'42
Your browser does not support the video tag.
Grundriss OG



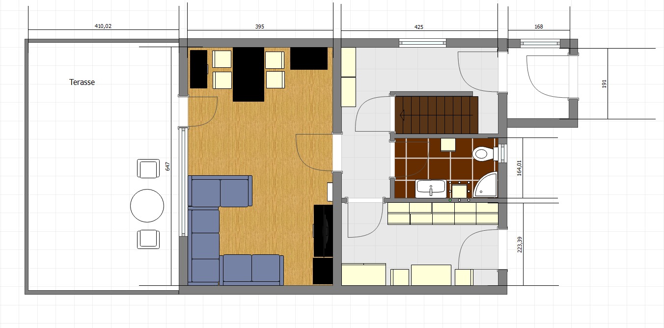
'42a
Grundriss OG - So kann ich OG für Sie umbauen.



'42a
Your browser does not support the video tag.
Grundriss OG - So kann ich OG für Sie umbauen.



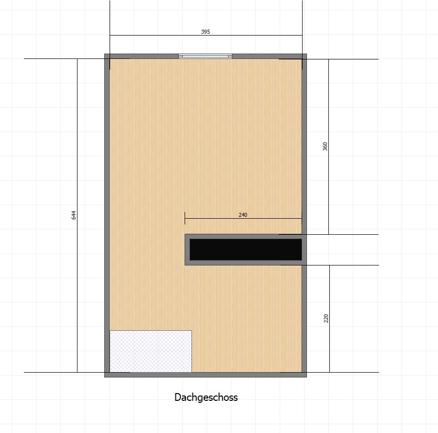
'43
Grundriss Dachgeschoss